Street Source is shutting down April 30th, 2026.
Read the announcement
Search
Toggle search
Login
Register
Toggle sidebar
Search
Mazda Adjustable Suspension
Frame Diagrams and Dimensions
Frame Diagrams and Dimensions
Mazda Adjustable Suspension
Mazda Suspension
Mazda Tech
17097 views
21 replies
15 following
Frame Diagrams and Dimensions
thetornado
+1y
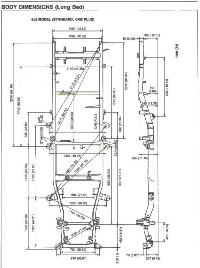
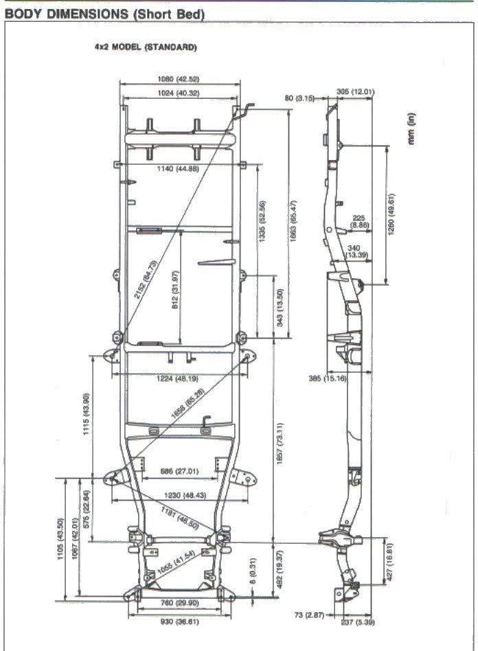
Short Bed & Long Bed
Post was last edited on Dec 13, 2007 03:07. Edited 3 times.
S
southernrazed
+1y
hah diagrams...ummm...i made mine up as i went along...hahha..no i can wip something up this week though
elbine69
+1y
The link doesnt work anymore
thetornado
+1y
they do now!
Post was last edited on Dec 13, 2007 03:08. Edited 1 time.
elbine69
+1y
Thankyou.
C
chris
+1y
man this it cool this is what they are showing us in my paint and body school right know
89mazdawg(daniel)
+1y
the pictures dont show up anymore after the linked page loads
thetornado
+1y
yeah i think they were lost when the sites went down. just email me if you want them, i can send them to you
L
lowb2200
+1y
can someone please get me the dimensions for the short bed frame they aare not working for me
elbine69
+1y
Short Bed
Long Bed
Previous
1
2
3
Next
Related Discussions in Mazda Adjustable Suspension
Thread
Posts
Last Post
1987 Mazda B2600 Replacement Leaf Springs
last post by
Cusser
+1y
4
4
last post by
Cusser
+1y
B2200 rwd torsion bar compatability
last post by
sincitylocal
+1y
5
5
last post by
sincitylocal
+1y
rear airbags and ride height???
S
last post by
Sam
+1y
3
3
S
last post by
Sam
+1y
Trying to find an old tech article
last post by
missed.a.leter
+1y
2
2
last post by
missed.a.leter
+1y