Street Source is shutting down April 30th, 2026. Read the announcement

What Have you done to your truck today?

77942 views
685 replies
143 following
L
What Have you done to your truck today?
stantheman's avatar
stantheman
+1y
I think he is asking how you got them to stay in place. I thought they were held in by the plastic nuts. The ones I got are solid and snap in.
91b2200(cody)'s avatar
91b2200(cody)
+1y
just curious on how much your machine shop charged you to bore those out? i think i'll have this done on my z71's so i dont have to grind my tabs
MJ
mr. jaun durfle
+1y
It's cheaper to grind your tabs off, but to do it the right way and have them bored out it cost me about $160.
MJ
mr. jaun durfle
+1y
Baha the center caps are one piece plastic with the fake lug nuts included, so you just gotta find some Z71's that came with them or find them on EBAY.
Post was last edited on Jan 23, 2011 04:12. Edited 1 time.
V
v8mazda4ever
+1y
Just looked at it today need to finish 2 other projects first LOl
E
emjay
+1y
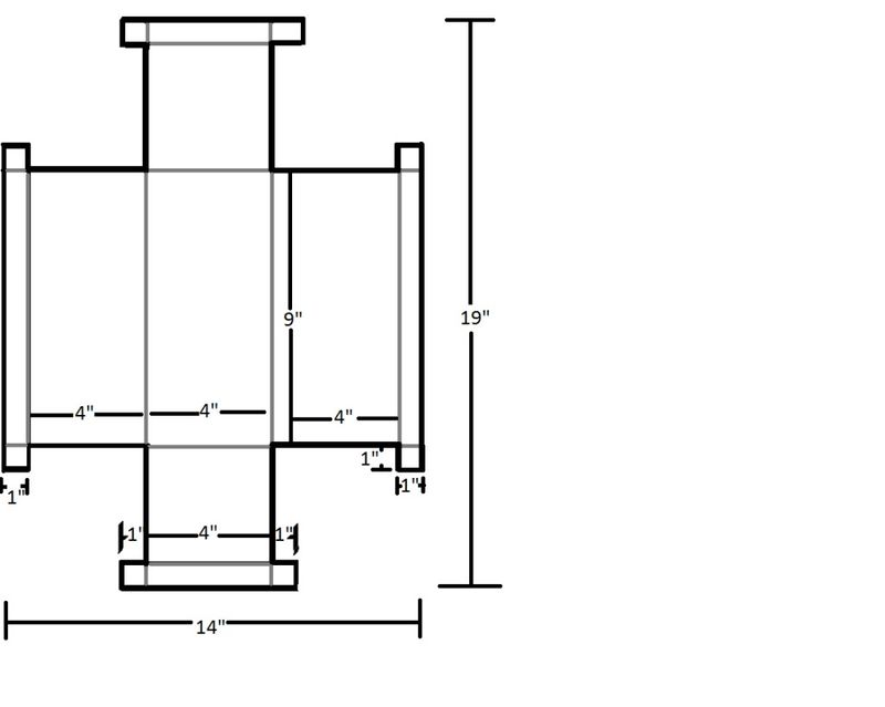
went out looking for a scrap piece of steel so I can make my notch in the firewall. Also measured the size that I am going to be doing this so my intake will clear and the swap can finally be completed.

thread post photo


Here's the basic schematic that I'm going to be using, it might end up being 6 inches wide instead of 4 though. The tray is gonna be 9 tall by 4 deep by 4 or 6 wide.
91b2200(cody)'s avatar
91b2200(cody)
+1y
got my head off today!
1
1low22
+1y
Did the timing on my truck tonight found out it was off by one tooth then found out my PCV valve was toast
hunterw's avatar
hunterw
+1y
thats system is lookin pretty damn good juan
1hotdawg's avatar
1hotdawg
+1y
New wheels and tires last week. Installed the Mazda 3 spoke steering wheel, put on a new clutch slave, put new front DT shocks on, and I put my tonneau cover back on it.

Ordered lots of replacement suspension parts from Rock Auto yesterday.

New center console to go in soon once I get a replacement shifter surround. Will sell the stock center console.



***Had to revive this thread.

Related Discussions in General Discussion