Street Source is shutting down April 30th, 2026. Read the announcement

Rhino 3D

1636 views
11 replies
4 following
paparoach1983@hotmail.com's avatar
Rhino 3D
paparoach1983's avatar
paparoach1983
+1y
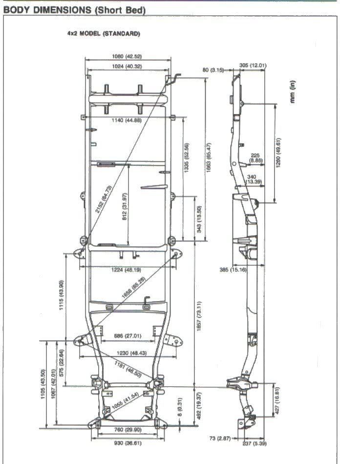
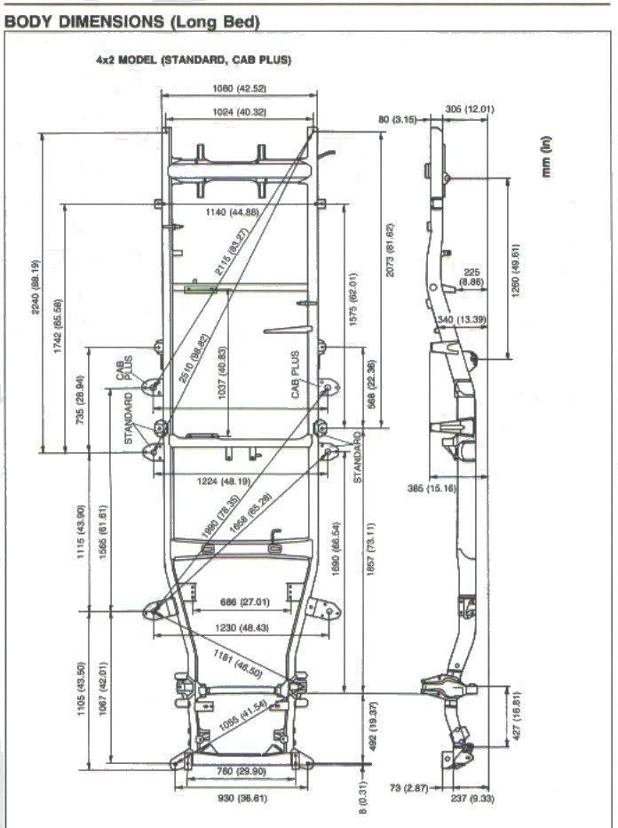
I was wondering if someone had a rhino version of the mazda frame. non 4x4. i am wanting to design my suspension and was wondering if someone had done this already. if not does anyone have frame dimensions with all angles and such of that nature. any help will be very appreciated. thanks
90-b22dawg [andrew]'s avatar
90-b22dawg [andrew]
+1y
i think Zaccutt was doing one for a school project here a while back???
elbine69's avatar
elbine69
+1y
Here you go.
thread post photo

thread post photo


I made this frame model using those dimensions. its for a ext cab longbed
thread post photo
paparoach1983's avatar
paparoach1983
+1y
What program is that?^^^^^^^^^^^^
jmzcustomz (jeff)'s avatar
jmzcustomz (jeff)
+1y
Pro/E Older version I believe. Hmmmm... If I weren't so dang busy I could use those dims and make a frame in ACAD.....
paparoach1983's avatar
paparoach1983
+1y
thanks mikey but i would also like the angles and some other measurements they dont give you. like how many inches from lower arm mount to top.
jmzcustomz (jeff)'s avatar
jmzcustomz (jeff)
+1y
If you save the images and then bring them into ACAD you can "trace" the frame and then scale based on the measurements given. This will probably get you pretty close. I reference ACAD because that is what I use but I am sure you can do the same with the other drafting programs.
elbine69's avatar
elbine69
+1y
Yeah thats the student version of Pro/E wildfire 3.0. I used those dimensions, and measured on my frame for the dimensions that were missing. Ill hopefully be building that frame for my senior project next semester, I have to submit a proposal for it in the next couple weeks.
jmzcustomz (jeff)'s avatar
jmzcustomz (jeff)
+1y
Fun Fun. Let us know how it goes...With pictures of course! Hmmmm... now could you not export out a .3ds or .dwg file for that? Maybe even an .iges file.
elbine69's avatar
elbine69
+1y
I will, there will be a project thread if that all happens. I know I have a .dwg of the frame, let me see what I can do.

Related Discussions in General Discussion