Street Source is shutting down April 30th, 2026. Read the announcement

PTC - Positive Temperature Coefficient

2033 views
7 replies
5 following
A
PTC - Positive Temperature Coefficient
JT
junk tech
+1y
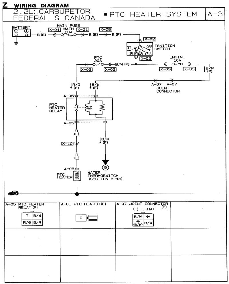
Starting in 1986, Mazda used PTC - the fancy name for a "carb heat plate" to prevent carb icing in winter . The temp switch is supposed to turn it on when coolant temp is below 41 degrees.
When I installed a Weber kit on my 1989 pickup (two days ago) I retained this carb heat plate, making a small mod to the adapter plate gasket so the heater will make contact. Been to busy tuning a Weber and eliminating wires and hoses, have not traced the heat plate wire. I assume it goes straight to a coolant temp switch, but it may go through a relay because of higher current draw.
Anybody knowing about this could give me a heads up.

I retained the PTC system because of a lesson I learned with Offy intake on a Ford 300 six. Cold winter nights my carb would ice up and the old Ford would hardly run.


thread post photo
fdugn545's avatar
fdugn545
+1y
Correct me if I'm wrong but I think that the ptc is controlled by the ecu... Which is useless with the Weber. Idk for sure tho.




Fred

Sent from Samsung Galaxy S3 using Tapatalk 2
sincitylocal's avatar
sincitylocal
+1y
Nope!
The PTC has a relay. It operates completely independent of the ECU, and the thermoswitch is located in the bottom radiator tank.

thread post photo

thread post photo
E
emjay
+1y
Sin beat me to it, but that is correct.
chaserjohndoe's avatar
chaserjohndoe
+1y
is that image reversed?
fdugn545's avatar
fdugn545
+1y
My bad guys...





Fred

Sent from Samsung Galaxy S3 using Tapatalk 2
sincitylocal's avatar
sincitylocal
+1y

Nope. The relay will be on the right side inner fender, if so equipped.
JT
junk tech
+1y
Thanks guys, for the PTC input! The diagram is very helpful. Hey, I've noticed there's some pretty smart people out there! (besides me of course, ha ha)
JT

Related Discussions in General Discussion